fbpx
Beisfjord

BUD MOTTATT - Stor eiendom med enebolig og uthus i Beisfjord

  • Prisantydning:
    1850000,-
  • BRA:
    122 m2
  • Soverom:
    3
  • Byggeår:
    1936
BUD MOTTATT - Stor eiendom med enebolig og uthus i Beisfjord
  • Boligtype:
    Gårdsbruk/Småbruk
  • Etasje:
    3
  • Heis:
    Nei
  • Eierform:
    Eier (Selveier)
  • Tomteareal:
    475900 m2
  • Veranda:
    Nei
  • Garasje/P-plass:
    Ja
  • Visninger:
    Ta kontakt for å avtale visning
Ingve Hilstad
Eiendomsmegler MNEF / Fagansvarlig
+47 91 33 37 68
Bestill salgsoppgave >Bestill salgsoppgave v

Se full beskrivelse av eiendommen +Vis mindre informasjon -

Detaljer

  • Verditakst: 1 850 000,-
  • Kommunale avgifter: 6 660,-
  • Ligningsverdi: 187 568,-
  • Bruksareal: 122 m2
  • Tomteareal: 475900 m2
  • Eierform: Eier (Selveier)
  • Boligtype: Gårdsbruk/Småbruk
  • Soverom: 3
  • Fasiliteter

    • Balkong/Terrasse
    • Barnevennlig
    • Garasje/P-plass
    • Hage
    • Peis/Ildsted
    • Rolig
    • Utsikt
    • Utvidelsesmuligheter
    • Fiskemulighet
    • Turterreng
  • Beskrivelse

    Denne eiendommen i vakre omgivelser i Beisfjord gir deg hele 475 dekar med noe fulldyrket jord (7,4 dekar), skog (2,9 dekar) og annet markslag - perfekt for småbruk, hobbybruk og utvikling.

    Eneboligen med tre soverom, samt to eldre bygg: uthus og hønsehus, dette gir deg et godt utgangspunkt for å skape din drømmebolig og driftssenter.
    Landlig og fredelig beliggenhet med nærhet til sjø, fjell og flotte friluftsområder.
    Her får du fine arealer, vakker utsikt og gode muligheter for et småbruk eller generelt en flott bolig som et bo- og oppvokststed for en familie.
    Ca. 15 km til Narvik sentrum.
    Konsesjonsplikt og driveplikt gjelder.

    Ta kontakt med megler for å avtale visning.
  • Gropveien 25 8522 Beisfjord Norge

    Finnkode: 445077425

    Kort om eiendommen

    Denne eiendommen i vakre omgivelser i Beisfjord gir deg hele 475 dekar med noe fulldyrket jord (7,4 dekar), skog (2,9 dekar) og annet markslag - perfekt for småbruk, hobbybruk og utvikling.

    Eneboligen med tre soverom, samt to eldre bygg: uthus og hønsehus, dette gir deg et godt utgangspunkt for å skape din drømmebolig og driftssenter.
    Landlig og fredelig beliggenhet med nærhet til sjø, fjell og flotte friluftsområder.
    Her får du fine arealer, vakker utsikt og gode muligheter for et småbruk eller generelt en flott bolig som et bo- og oppvokststed for en familie.
    Ca. 15 km til Narvik sentrum.
    Konsesjonsplikt og driveplikt gjelder.

    Ta kontakt med megler for å avtale visning.

    Innhold

    Enebolig:
    Kjeller: 1 bod.
    1.etasje: Stue, kjøkken, spiskammers, gang, gang/trapperom, bad.
    2.Etasje: Gang/trapperom, 3 soverom, bod.

    Uthus: 2 rom. Hønsehus.

    Standard

    Enebolig bygget i 1936, tilbygget i ca. 2004.

    Innvendig:
    Varme i i gulv i gang, samt kjøkken og stuegulv.

    Bad:
    Bad etablert i tilbygg fra 2004.
    Tak/himling: Panel. Vegger : Våtromsplater. Gulv: Fliser med varmekabler. Innredet med dusjkabinett, wc, nedfelt servant med underskap. Plastsluk i gulv, smøre synlig membran i sluken. Mekanisk lufting.
    Tilnærmet flatt gulv. Hulltaking i tilstøtende gang.

    Kjøkken:
    Innredning fra 2004. Tak/himling: Malte tak plater med synlige malte dragere. Vegger: Malte plater, fliser mellom benker og overskap. Gulv: Parkett. Innredet med oppvaskbenk med underskap, benker med skuffeseksjoner og underskap, overskap. Avtrekksvifte. Vannet var avstengt til boligen på befaringsdagen så vann og avløpsrør kunne ikke kontrolleres.

    Tekniske installasjoner:
    Vannrør i kobber og avløpsrør i plast, varmtvannsbereder av type CTC fra 2002 på 120 l plassert i kjeller. Synlige vann - og avløpsrør i oppvaskbenk.
    Rør i rør opplegg på deler av installasjon på badet.
    Stoppekrana i kjeller.
    Sikringsskap med automatsikringer og kurs fortegnelse plassert i gang i 1. etasjen.
    Hovedsikring 50 A.

    Se for øvrig "Tilstandsrapport" utført av Ingeniør Olav Sørensen, datert 12.11.2025.

    Beliggenhet

    Eiendommen ligger i landlige omgivelser i rolige Gropveien i Beisfjord, med kort vei til natur og friluftsområder. Cirka 15 km fra Narvik sentrum. I området er det spredt boligbebyggelse.

    Tomt

    Tomten rundt eneboligen er i mindre grad opparbeidet. Gruset innkjøringsvei og oppstillingsplasser for biler. Privat vanntilførsel fra Beisfjord Vannverk. Kommunal avløpssystem.

    Eiet tomt på cirka 475 900 m². Arealet gjelder bnr. 40, 46 og 56 fordelt på 4 teiger.
    Ut i fra kartutsnitt er deler av en garasje tilhørende naboeiendom gnr. 44/bnr. 628 plassert delvis inne på denne eiendommen bnr. 40. Det foreligger ingen skriftlig tillatelse til dette, men det antas at dette er avtalt mellom partene tidligere. Selger tar forbehold om at kjøper er kjent med forholdet og overtar ansvaret knyttet til dette avviket.
    Tomten er ikke oppmålt, dermed kan areal og grenser være usikre.

    I vedlagte matrikkel tilhørende gnr. 44 bnr. 46 fremkommer det at eiendommen kan tilhøre/være en del av et uregistrert jordsameie med beregnet areal på 1 377 989,5 m². Info fra nettsiden til Kartverket: Type: Eiendomsteig Uregistrert jordsameie, Koordinater: 7585246 605573 (32633), Areal: 1 377 989,5 m2, Merknader: Noen fiktive grenser. Det foreligger ikke ytterligere info rundt dette.

    Eiendommens arealer i dekar (daa):
    Fulldyrket jord daa 7,4
    Skog av middels bonitet daa 2,9
    Uproduktiv skog daa 313,2
    Åpen jorddekt fastmark daa 2,2
    Åpen grunnlendt fastmark daa 0,1
    Bebygd, samf, vann, bre daa 2,3
    Sum arealer: daa 475,9

    Eiendommen er en landbrukseiendom iht. eiendommens størrelse. Eiendom med mer enn 35 dekar dyrka mark (fulldyrka og overflatedyrka jord) og/eller mer enn 100 dekar totalt areal regnes som landbrukseiendom. Eiendom 1806-44/40 har kun 7,4 dekar fulldyrka jord, men eiendommen totalt er på 475,9 dekar.

    Jord og beite:
    Jorden blir høstet av en lokal gårdbruker. Det betales ingen leie for jorden. Se punkt "driveplikt" i salgsoppgaven.

    Skog og utmark:
    Det er ingen form for drift i skogen. Tar ut ved for eget brensel. Ingen skogsbilveier inn i skogen.

    Parkering

    Oppstillingsplasser på tomten.

    Oppvarming

    Vedfyring og elektrisk.

    Regulerings og arealplaner

    Eiendommen ligger i område som i kommuneplanen ligger under arealformål boligbebyggelse, deler av eiendommen ligger under arealformål: grav-og urnelund.
    Deler av eiendommen ligger under arealformål: LNRF areal for nødvendige tiltak for landbruk og reindrift og gårdstilknyttet næringsvirksomhet basert på gårdens ressursgrunnlag.
    Deler av eiendommen er i faresone: PlanID: 2015007 Faretype: Ras- og skredfare Hensynsonenavn: H310.
    Naboeiendom er regulert til barnehage PlanID: 2018003.

    Adkomst

    Eiendommen ligger til offentlig vei/gate med adkomst fra Gropveien. En naboeiendom gnr. 44 bnr. 223 har vei/adkomstrett over eiendommen gnr. 44 bnr. 40.

    Ansvarlig megler

    Ingve Hilstad

    Matrikkelinformasjon

    • Gårdsnr: 44
    • Bruksnr: 40
    • Kommunenr: 1806
    Se komplett salgsoppgave

    Bilder

    Velkommen til Gropveien 25!
    Eiendommen har en stor tomt med rikelig boltreplass, her ser du et utsnitt av deler av tomten som omkranser boligen
    Eiendommen har mange muligheter, her går du en romslig tomt i stille og rolige omgivelser og et hus med potensialet til å skape ditt drømmehjem!
    Eiendommen ligger lunt til i naturskjønne Beisfjord, omgitt av vakre fjell og grønt landskap
    Boligen har en hyggelig uteplass og god plass i hagen til drivhus, lek og aktiviteter for små og store
    Inngangspartiet leder inn til boligen som venter på å få nye eiere. Her er det rom for både kreativitet og personlig preg - et perfekt prosjekt for deg som vil skape ditt eget hjem
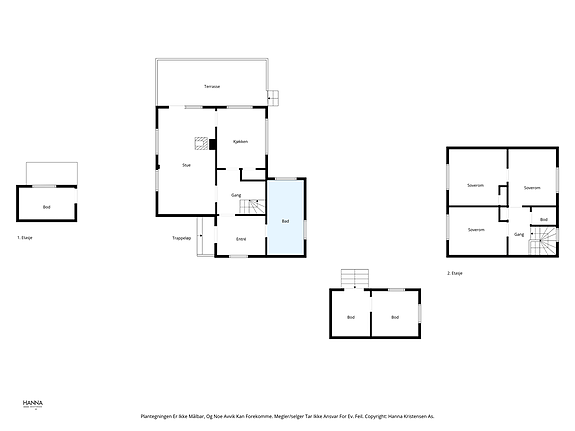
    Plantegning av 1. etasje og uthusene som medfølger boligen
    Velkommen inn!
    Entré med plass til garderobeløsning og oppheng - fra entré har du direkte adkomst til husets bad
    Romslig baderom med flislagt gulv, dusjkabinett og baderomsinnredning
    Praktisk planløsning med toalett og dusj i samme rom - et funksjonelt bad som enkelt kan moderniseres med enkle grep
    Lyst rom med god plass til oppbevaring og mulighet for å tilpasse løsningen etter behov
    Servantløsning med speil og rikelig skapplass
    I badet er det dusjkabinett og opplegg for vaskemaskin
    Badet er utstyrt med fliser på gulvet og våtromsplater på veggen - romslig bad som gir et godt utgangspunkt for personlige preg
    Romslig entré med garderobeløsning og mulighet for oppheng av yttertøy og sko
    Gangen har lyse vegger og gode flater som gjør det enkelt å se mulighetene for å sette eget preg på boligen
    Fra gangen har du adkomst til både stue og kjøkken - et praktisk utgangspunkt for en funksjonell hverdag
    Lys og romslig stue med store vinduer som slipper inn rikelig med dagslys og gir flott utsikt mot fjellene
    Fra stuen har du utgang til boligens veranda
    Romslig veranda med gode muligheter for ulike sittegrupper
    Fra veranda har du nydelig utsikt mot fjellene og omgivelsene i Beisfjord - her er det mulig å finne roen
    Perfekt sted å nyte morgenkaffen, ettermiddager og sene sommerkvelder
    Stuen har god plass til både sofa- og spisegruppe, og den åpne løsningen gjør rommet luftig og fleksibelt
    Vedovnen gir både varme og stemning på kalde vinterdager - et naturlig midtpunkt i rommet
    Fra stue har du adkomst inn til kjøkkenet
    Kjøkkenet er lyst og praktisk med vinduer i to retninger som gir naturlig lysinnslipp og utsikt til hagen
    Kjøkkenet har gode arbeidsflater og rikelig med skapplass
    Kjøkkenet har potensialet til å moderniseres etter egen smak og behov
    Fra gang har du adkomst opp til husets 2. etasje
    Plantegning 2. etasje
    Velkommen til husets 2. etasje
    Husets 2. etasje rommer 3 soverom og en bod
    Soverom 1 - Lyst og trivelig soverom med utsikt mot grønt og rolig nabolag
    Soverom 1 - Rommet har vinduer som slipper inn rikelig med dagslys og gir en fin kontakt med naturen utenfor
    Soverom 1 - Soverommet har god plass til både seng og garderobeløsning
    Fantastisk utsikt fra soverommet
    Soverom 2 - Fra soverom 1 har du inngang inn til soverom 2
    Soverom 2
    Soverom 3
    Soverom 3
    Flott utsikt fra soverom 3 mot vakker natur
    Bod 2. etasje
    Plantegninger
    Eneboligen har en klassisk fasade med stor veranda og en romslig tomt som omgis av vakker natur og fjell
    Godt med boltreplass rundt huset og fin avstand til naboer. En eiendom med mange muligheter for deg som ønsker å forme ditt eget hjem
    Uteområdet byr på både gressplen og et uthus som gir ekstra lagringsplass
    Det sjarmerende røde uthuset gir eiendommen et nostalgisk uttrykk og kan med enkle grep bli et koselig anneks, verksted eller lekehus
    Uthus og hage med nydelig utsyn mot fjellene - her er det lett å se for seg rolige dager og sene sommerkvelder under trærne
    Gropveien 25 ligger sentralt i Beisfjord, omgitt av fjell, skog og grønne omgivelser. Her får du et trygt og barnevennlig bomiljø
    Romslig tomt med gode muligheter for deg som ønsker plass til både hage, lek eller fremtidige utvidelser.
    Beisfjord byr på et vakkert landskap med kort vei til både sjø, fjell og turterreng - her får du det beste av nordnorsk natur
    Nydelig beliggenhet med utsikt mot fjorden og fjellene som rammer inn Beisfjord - et sted for deg som vil bo landlig, men likevel nært Narvik sentrum
    Velkommen på visning til Gropveien 25!
    Kartutsnitt av gnr. 44 bnr. 40
    Kartutsnitt av gnr. 44 bnr. 56
    Kartutsnitt av eiendommen
    Se alle bilder +Gjem alle bildene -
    Jenssen og Bolle
    Ingve Hilstad
    Eiendomsmegler MNEF / Fagansvarlig
    Kontakt
    +47 91 33 37 68
    Vis alle eiendommer Se hele annonsen på Finn.no