fbpx
Narvik

Enebolig med attraktiv beliggenhet, flott utsikt, garasje og solrikt område

  • Prisantydning:
    2990000,-
  • P-rom:
    148 m2
  • BRA:
    185 m2
  • Soverom:
    2
  • Byggeår:
    1972
Enebolig med attraktiv beliggenhet, flott utsikt, garasje og solrikt område
  • Boligtype:
    Enebolig
  • Etasje:
    2
  • Heis:
    Nei
  • Eierform:
    Eier (Selveier)
  • Tomteareal:
    701 m2
  • Veranda:
    Nei
  • Garasje/P-plass:
    Ja
  • Visninger:
    Ta kontakt for å avtale visning
Ingve Hilstad
Eiendomsmegler MNEF / Fagansvarlig
+47 91 33 37 68
Bestill salgsoppgave >Bestill salgsoppgave v

Se full beskrivelse av eiendommen +Vis mindre informasjon -

Detaljer

  • Verditakst: 2 990 000,-
  • Kommunale avgifter: 25 071,-
  • Ligningsverdi: 807 300,-
  • Primærrom: 148 m2
  • Bruksareal: 185 m2
  • Tomteareal: 701 m2
  • Eierform: Eier (Selveier)
  • Boligtype: Enebolig
  • Soverom: 2
  • Fasiliteter

    • Balkong/Terrasse
    • Barnevennlig
    • Garasje/P-plass
    • Peis/Ildsted
    • Rolig
    • Sentralt
    • Utsikt
    • Turterreng
  • Beskrivelse

    Eiendomsmegler Ingve Hilstad hos Jenssen & Bolle Eiendomsmegling har gleden av å presentere denne eneboligen i Måseveien 29:
    Velkommen til Måseveien 29 - en romslig enebolig med sentral beliggenhet i et populært og solrikt område på Storåsen.

    Boligen ligger høyt i terrenget og har flott utsikt over Ofotfjorden.
    Her bor du i et etablert og barnevennlig nabolag med kort vei til skole, barnehage, dagligvare og fine turområder.

    Inneholder blant annet stor stue med åpen kjøkkenløsning, bad, vaskerom, soverom, kjellerstue med mulighet for 2 ekstra soverom, samt et innredet rom under garasjen(innredet rom ikke godkjent).
    Garasje med parkering, flere uteplasser på veranda og terrasse. Det må påregnes noe vedlikehold og oppgraderinger.

    Ta kontakt med megler for å avtale visning!
  • Måseveien 29 8516 Narvik Norge

    Finnkode: 411089660

    Kort om eiendommen

    Eiendomsmegler Ingve Hilstad hos Jenssen & Bolle Eiendomsmegling har gleden av å presentere denne eneboligen i Måseveien 29:
    Velkommen til Måseveien 29 - en romslig enebolig med sentral beliggenhet i et populært og solrikt område på Storåsen.

    Boligen ligger høyt i terrenget og har flott utsikt over Ofotfjorden.
    Her bor du i et etablert og barnevennlig nabolag med kort vei til skole, barnehage, dagligvare og fine turområder.

    Inneholder blant annet stor stue med åpen kjøkkenløsning, bad, vaskerom, soverom, kjellerstue med mulighet for 2 ekstra soverom, samt et innredet rom under garasjen(innredet rom ikke godkjent).
    Garasje med parkering, flere uteplasser på veranda og terrasse. Det må påregnes noe vedlikehold og oppgraderinger.

    Ta kontakt med megler for å avtale visning!

    Innhold

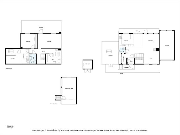
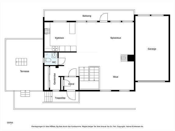
    1. etasje: Vindfang, gang, toalettrom, stue/kjøkken.
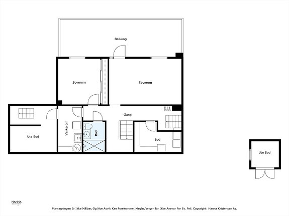
    Kjeller: Gang, bod, bad, vaskerom, 1 soverom, TV-stue(opprinnelig 2 soverom), innredet rom under garasjen.

    Standard

    Enebolig fra 1972 med sentral beliggenhet på Storåsen. Boligen har normal bruksslitasje og enkelte avvik som må påregnes utbedret. Det må påregnes noe vedlikehold og oppgraderinger for å tilpasse dagens standard.

    Overflater:
    Innvendig er det gulv av laminat, fliser og belegg og teppegulv.
    Veggene har trepanel, malte plater, murt forblending og Strie.
    Innvendige tak har trepanel og himlingsplater.

    Kjøkken:
    Kjøkkenet har innredning med profilerte fronter. Benkeplaten er av laminat. Det er kjøleskap, oppvaskmaskin, platetopp og stekeovn. Det er kjøkkenventilator med avtrekk ut.

    Bad:
    Rommet har elektriske varmekabler. Fall i dusjsone på 12 mm. 11 mm fall fra terskel mot dusj. Det er plastsluk og ukjent tettesjikt/membran. Rommet har innredning med nedfelt servant,toalett og dusjvegger/hjørne. Det er elektrisk styrt vifte. Hulltaking er foretatt uten å påvise unormale forhold. Fuktkvotemåling (vekt%) i konstruksjonen ble målt til 0. Hulltaking er foretatt under trapp mot bad.

    Toalettrom:
    Malestrie på vegger. Himlingsplater på innvendig tak. Laminat på gulv. Toalett med vask og speil

    Vaskerom:
    Våtrom har hatt oppgraderinger av overflater i 2005, det er lagt fliser på gulv og enkelte vegger med våtromsplater. tettesjikt er ikke lagt. Våtromsplater og panel på vegger. Malt panel på innvendig tak. Fliser på gulv. Opplegg for vaskemaskin ved skyllekar. Våtrommet er i daglig bruk men anbefaler renovering på grunn av tilstand og alder. Hulltaking er foretatt uten å påvise unormale forhold. Fuktkvotemåling (vekt%) i konstruksjonen ble målt til 9.
    Hulltaking er foretatt fra gang mot vaskerom.

    Tekniske installasjoner:
    Innvendige vannledninger er av kobber og jern.
    Det er avløpsrør av plast. Skjulte avløpsrør er av ukjent type.
    Boligen har naturlig ventilasjon.
    Det er installert varmepumpe luft til luft.
    Varmtvannstanken er på ca. 200 liter.
    Boligen har montert sentralstøvsuger.
    Sentralstøvsuger er ikke funksjonstestet.
    El. anlegg er hovedsakelig fra byggeår, med skjult og åpen løsning. Eldre sikringsskap fornyet med automatsikringer.
    Det elektriske anlegget er ikke vurdert i denne rapporten da dette krever spesiell kompetanse og autorisasjon. På generelt grunnlag anbefales det derfor en gjennomgang av en el.fagmann. Heller ikke visuelle feil kommenteres hvis ikke dette fremgår særskilt nedenfor. Eldre sikringskap med automatsikringer, åpen og skjult anlegg
    Brannvarslere og brannslokningsapparat.

    Se forøvrig "Tilstandsrapport" utført av Eidstø AS v/Harry Andreas Eidstø datert 21.05.2025.

    Beliggenhet

    Eiendommen har en sentral beliggenhet på Storåsen, med kort vei til dagligvarebutikk og gangavstand til barnehage, barne-, ungdoms- og videregående skole. Området tilbyr nærhet til idrettshall, fotballbaner, småbåthavn og fine turområder. Solrik beliggenhet med flott utsikt over Ofotfjorden.

    Tomt

    Eiet tomt på ca 701 m² (Kilde: målebrev og matrikkel). Eiendommen ligger i relativt skrånende terreng. Uthus står plassert delvis utenfor tomtegrensen på kommunal grunn, det foreligger ingen avtale på dette, uthuset er mulig å flytte på.

    Parkering

    Parkering i garasje og i offentlig gate.

    Oppvarming

    Vedfyring, varmepumpe og elektrisk.

    Regulerings og arealplaner

    Eiendommen ligger i et område regulert til boligbebyggelse.
    Planinformasjon:
    PLAN-ID: N-2.57
    PLANNAVN: Området mellom Einarvik og Lillevik, mot Storåsen
    PLANTYPE: Eldre reguleringsplan
    PLANSTATUS: Endelig vedtatt arealplan
    VERTIKALNIVÅ: På grunnen/vannoverflate
    IKRAFTTREDELSESDATO: 1967-06-06T00:00:00
    Arealformål:
    PlanID: N-2.57
    Arealformål (regform): Boliger
    Feltnavn: Kv. 507
    Vertikalnivå: På grunnen/vannoverflate

    Adkomst

    Eiendommen har adkomst via offentlig veg eller gate.

    Ansvarlig megler

    Ingve Hilstad

    Matrikkelinformasjon

    • Gårdsnr: 39
    • Bruksnr: 1335
    • Kommunenr: 1806
    Se komplett salgsoppgave

    Bilder

    Velkommen til Måseveien 29!
    Fra stuen er det ei praktfull utsikt utover Ofotfjorden
    Fra stuen er det ei praktfull utsikt utover Ofotfjorden
    Boligen fordeler seg over 2 plan
    Enebolig beliggende sentralt på Storåsen med kort vei til dagligvarebutikk og gangavstand til barnehage, barne-, ungdoms- og videregående skole.
    Plantegning 1.etasje
    Velkommen inn!
    Skyvdørsgarderobe i entré gir god plass til oppbevaring
    Entré
    Romslig og lys stue
    Åpen stue- og kjøkkenløsning
    Flere vindusflater gir godt lysinnslipp til rommet
    God utsikt fra stuen!
    Fra stue er det utgang til veranda
    Fra veranda kan man nyte denne flotte utsikten over Ofotfjorden
    Veranda
    Veranda
    Utsikt fra veranda
    Utsikt fra veranda
    I stue er det muligheter for møblering i ulike soner
    Vedfyring gir god varme på kalde dager
    Kjøkkenet har lys innredning med profilerte fronter og benkeplate av laminat
    Kjøkkenet er utstyrt med kjøleskap, oppvaskmaskin, platetopp og stekeovn. Det er ventilator med avtrekk ut.
    Det er plass til spisegruppe på kjøkken. Herfra har man nydelig utsikt over Ofotfjorden.
    Toalettrom
    Plantegning underetasje
    Fra entré er det trapp ned til underetasje
    Vedfyring i begge etasjer gir god varme til boligen
    Gang
    Flislagt bad med elektriske varmekabler i gulv
    Badet har innredning med nedfelt servant, toalett og dusjvegger/hjørne
    Soverom 1 er romslig og har god plass til dobbelseng og nattbord
    Skyvdørsgarderobe gir god plass for oppbevaring
    Opprinnelig 2 soverom, benyttes i dag som TV-stue
    Fra TV-stue er det utgang til veranda
    Romslig veranda med god plass til utemøbler
    Solrik veranda med godplass for møblering
    Herfra har man god utsikt over Ofotfjorden
    Utsikt til nærområdet fra eiendommen, her er det kort vei til idrettsanlegg og treningssenter ved Narvik Stadion
    Vaskerom
    Bod
    Bod
    Under garasje er det etablert et soverom, dette er ikke meldt som bruksendring.
    Innredet rom i underetasjen under garasje, rommet er ikke omsøkt/godkjent hos bygningsmyndighetene.
    Innredet rom i underetasjen under garasje, rommet er ikke omsøkt/godkjent hos bygningsmyndighetene.
    Skyvdørsgarderobe gir god plass for oppbevaring. Rommet er ikke omsøkt/godkjent hos bygningsmyndighetene.
    Plantegning
    Garasje
    Terrasse
    Terrasse
    Ta kontakt med megler for å avtale visning
    Nå kan denne utsikten bli din!
    Se alle bilder +Gjem alle bildene -
    Jenssen og Bolle
    Ingve Hilstad
    Eiendomsmegler MNEF / Fagansvarlig
    Kontakt
    +47 91 33 37 68
    Vis alle eiendommer Se hele annonsen på Finn.no