fbpx
Narvik

Velholdt bolig med tre boenheter pluss hybel og garasje, gode leieinntekter

  • Prisantydning:
    6300000,-
  • BRA:
    342 m2
  • Soverom:
    6
  • Byggeår:
    1930
Velholdt bolig med tre boenheter pluss hybel og garasje, gode leieinntekter
  • Boligtype:
    Tomannsbolig
  • Etasje:
    4
  • Eierform:
    Eier (Selveier)
  • Tomteareal:
    633 m2
  • Visninger:
    Ta kontakt for å avtale visning
Ingve Hilstad
Eiendomsmegler MNEF / Fagansvarlig
+47 91 33 37 68
Bestill salgsoppgave >Bestill salgsoppgave v

Se full beskrivelse av eiendommen +Vis mindre informasjon -

Detaljer

  • Verditakst: 6 300 000,-
  • Kommunale avgifter: 52 166,-
  • Ligningsverdi: 960 809,-
  • Bruksareal: 342 m2
  • Tomteareal: 633 m2
  • Eierform: Eier (Selveier)
  • Boligtype: Tomannsbolig
  • Soverom: 6
  • Beskrivelse

    Eiendomsmegler Ingve Hilstad hos J&B Emgl. har gleden av å presentere denne boligen i Vassvikveien 20:

    Boligbygg med tre leiligheter og hybel i et veletablert boligområde i Vassvik. Her bor du med kort gangavstand til skoler, barnehage, idrettshall, butikker og Narvik sentrum, samt nærhet til sjø, turområder og småbåthavn.
    God utnyttelse av arealene over fire etasjer gir fleksible løsninger for både egen bruk og utleie, med dagens leieinntekt er på kr 39 850,- pr. mnd.
    Boligen er i hovedsak oppgradert rundt 2007/2008 med blant annet nye kjøkken, våtrom, vinduer, elektrisk anlegg og VVS, i tillegg til garasje på tomten. Videre vedlikehold og oppgraderinger må påregnes, se salgsoppgave og tilstandsrapport.

    Kan dette være det du ser etter?
    Ta kontakt for visning!
  • Vassvikveien 20 8517 Narvik Norge

    Finnkode: 374551051

    Kort om eiendommen

    Eiendomsmegler Ingve Hilstad hos J&B Emgl. har gleden av å presentere denne boligen i Vassvikveien 20:

    Boligbygg med tre leiligheter og hybel i et veletablert boligområde i Vassvik. Her bor du med kort gangavstand til skoler, barnehage, idrettshall, butikker og Narvik sentrum, samt nærhet til sjø, turområder og småbåthavn.
    God utnyttelse av arealene over fire etasjer gir fleksible løsninger for både egen bruk og utleie, med dagens leieinntekt er på kr 39 850,- pr. mnd.
    Boligen er i hovedsak oppgradert rundt 2007/2008 med blant annet nye kjøkken, våtrom, vinduer, elektrisk anlegg og VVS, i tillegg til garasje på tomten. Videre vedlikehold og oppgraderinger må påregnes, se salgsoppgave og tilstandsrapport.

    Kan dette være det du ser etter?
    Ta kontakt for visning!

    Innhold

    1. Etasje: Trapperom, gang, soverom, soverom 2, bad/vaskerom, stue/kjøkken.
    2.Etasje: Trapperom, gang, soverom, soverom 2, bad/vaskerom, stue/kjøkken.
    Loft: Trapperom, stue, gang, bod, bad, kjøkken, soverom.
    Kjeller: Vindfang, stue/kjøkken, soverom, bad/vaskerom, bod.
    Garasje på eiendommen.

    Standard

    Normal standard på bygget ut ifra alder/konstruksjon. Bygget er jevnlig vedlikeholdt.
    Boligbygg med tre leiligheter og en hybelleilighet på loftet. Leilighetene i sokkeletasjen, 1. etasje og 2. etasje er oppusset. Oppgraderinger inkluderer etterisolering, utskifting av vinduer, fornyelse av elektrisk anlegg og VVS (vann- og avløpssystemer). Det er også nye våtrom og kjøkken i disse leilighetene. Hybelleiligheten på loftet er ikke oppgradert og vil kreve arbeid for å bringes opp til samme standard som resten av bygget. Videre vedlikehold og eventuelle oppgraderinger må påregnes for hele eiendommen. Fuktsøk er utført i våtrommene og i rom som vender mot terreng, uten at det ble registrert noen avvik.

    Innvendige overflater:
    Innvendig er det gulv av parkett og fliser. Veggene har malte plater og strie. Innvendige tak har malte plater.
    Overflater - Loft: Innvendig er det gulv av laminat, malte gulvbord og belegg. Veggene har trepanel. Innvendige tak har malte plater og himlingsplater.

    Bad/vaskerom 1.etasje:
    Aktuell byggeforskrift er tekniske forskrifter i perioden 1997-2010. Dokumentasjon: ingen dokumentasjon.
    Veggene har fliser. Taket er malt. Gulvet er flislagt. Rommet har elektriske varmekabler. Det er plastsluk og ukjent tettesjikt/membran. Rommet har innredning med nedfelt servant, veggmontert toalett,
    dusjvegger i glassbyggerstein og opplegg for vaskemaskin. Det er elektrisk styrt vifte. Hulltaking er ikke foretatt da det ikke er fysisk mulig pga tilliggende konstruksjoner.

    Bad/vaskerom 2.etasje:
    Aktuell byggeforskrift er tekniske forskrifter i perioden 1997-2010. Dokumentasjon: ingen dokumentasjon.
    Veggene har fliser. Taket er malt. Gulvet er flislagt. Rommet har elektriske varmekabler. Fall mot sluk er målt til 0mm. Det er plastsluk og ukjent tettesjikt/membran. Rommet har innredning med nedfelt servant, veggmontert toalett, dusjkabinett og opplegg for vaskemaskin. Det er elektrisk styrt vifte. Hulltaking er foretatt uten å påvise unormale forhold. Hulltaking er foretatt ned i svill i inspeksjonsluke. Fuktkvotemåling (vekt%) i konstruksjonen ble målt til 0.

    Bad loft:
    Byggeforskrifter fra før 1997. Dokumentasjon: Ingen dokumentasjon.
    Vegger har malt overflater. I dusj sone er det tapet/våtromstapet. Malte innvendig tak. Belegg. Gulvmontert toalett, vegghengt servant og opplegg for vaskemaskin. Våtrommet er i daglig bruk men anbefaler renovering, på grunn av tilstand og alder. Hulltaking er foretatt uten å påvise unormale forhold. Hulltaking er foretatt fra bod mot bad. Fuktkvotemåling (vekt%) i konstruksjonen ble målt til 0.

    Bad/vaskerom:
    Aktuell byggeforskrift er tekniske forskrifter i perioden 1997-2010. Dokumentasjon: ingen dokumentasjon.
    Veggene har fliser. Taket er malt. Gulvet er flislagt. Rommet har elektriske varmekabler. Fall mot sluk er målt til 0. Det er plastsluk og ukjent tettesjikt/membran. Rommet har innredning med nedfelt servant, veggmontert toalett, dusjkabinett og opplegg for vaskemaskin. Det er naturlig ventilering. Hulltaking er ikke foretatt da det ikke er fysisk mulig pga tilliggende konstruksjoner.

    Kjøkken 2.etasje:
    Kjøkkenet har innredning med profilerte fronter. Benkeplaten er av heltre. Det er kjøl/fryseskap, oppvaskmaskin, platetopp og stekeovn. Det er kjøkkenventilator med avtrekk ut.

    Kjøkken sokkeletasje:
    Kjøkkenet har innredning med glatte fronter. Benkeplaten er av heltre. Det er kjøl/fryseskap, platetopp, micro og stekeovn. Kombinert ventilator og micro.


    Kjøkken loft:
    Kjøkkenet har innredning med glatte fronter. Benkeplaten er av laminat. Kjøkkenventilator uten avtrekk ut.

    Kjøkken 1.etasje:
    Kjøkkenet har innredning med profilerte fronter. Benkeplaten er av laminat. Det er kjøl/fryseskap, oppvaskmaskin, platetopp, micro og stekeovn. Det er kjøkkenventilator med avtrekk ut.

    Tekniske installasjoner:
    Innvendige vannledninger er av kobber med plastkappe.
    Det er avløpsrør av støpejern plast.
    Boligen har naturlig ventilasjon.
    Varmtvannstanken er på ca 200 liter. Ukjent alder. Ikke mulig å inspisere.
    El. anlegg er med skjult og åpen løsning. Sikringsskap med automatsikringer og eldre skrusikringer.
    Mangler røykvarslere og brannslukningsutstyr.

    Se for øvrig "Tilstandsrapport" utført av Eidstø AS v/Harry Eidstø, datert 20.11.2025.

    Beliggenhet

    Bolig beliggende i et veletablert boligområde. Kort gangavstand til barneskole, ungdomsskole, videregående skole, idrettshall/svømmehall, barnehage og butikker. I nærområde finner du også "Rønningstomta" med aktivitetspark og skøytebane. Ca. 8 min. gange til bysentrum. Nærhet til sjøen, turområder og småbåthavn.

    Tomt

    Eiet tomt på ca. 633 m² (Kilde: Matrikkel)
    Lett skrående tomt. Tomt er opparbiedet.
    Av kartutsnitt hos Kartverket så kan det se ut til at garasjen eller garasjens takoverbygg er bygd inne på naboens eiendom. Det foreligger ingen skriftlig tillatelse til dette. Det foreligger byggemelding fra 1961 med godkjenning for å tilbygge den tidligere garasjen mot tomtegrensen til nabo (Denne garasjen er altså revet og bygget på nytt av dagens eier).
    Selger tar forbehold om at kjøper overtar ansvaret ved dette avviket om at det ikke foreligger noe godkjente dokumenter fra naboen eller bygningsmyndighetene for plassering av ny garasje.

    Parkering

    Parkering på eiendommen/i garasje.

    Oppvarming

    Vedfyring og elektrisk.

    Regulerings og arealplaner

    Eiendommen ligger i et område regulert til boligbebyggelse.
    Kommuneplan:
    PLANTYPE: Kommuneplanens arealdel
    PLANSTAT: Planforslag
    PLANNAVN: Kommuneplanenes arealdel 2016-2028
    PLANID: 2015007

    Reguleringsplan til behandling i området:
    Gjelder eiendom i Sjøveien: PlanID: 2020005 Arealformål: Boligbebyggelse-blokkbebyggelse Feltnavn: BB1 Eierform: Annen eierform Vertikalnivå: På grunnen/vannoverflate Utnyttingstype: %-BYA Utnyttingstall: 65.
    Gjelder eiendom i Villaveien/Ofotveien: PLANID: 2023002 PLANNAVN: Detaljregulering for Villaveien 72 PLANTYPE: Detaljregulering PLANSTAT: Planlegging igangsatt.

    Adkomst

    Eiendommen ligger til offentlig vei/gate.

    Ansvarlig megler

    Ingve Hilstad

    Matrikkelinformasjon

    • Gårdsnr: 39
    • Bruksnr: 413
    • Kommunenr: 1806
    Se komplett salgsoppgave

    Bilder

    Velkommen til Vassvikveien 20! Foto: Kalle Punsvik
    Frittliggende bolig over fire etasjer med utleiedeler - en attraktiv mulighet for deg som ønsker gode leieinntekter
    Stor og solrik tomt med terrasse og hage som kan benyttes av beboerne - perfekt for sommerdager og uteliv
    Fantastisk beliggenhet med kort vei til sentrum, flott utsikt mot fjellene og nærliggende turmuligheter
    Romslig tomt med hage og gode utearealer
    Plantegning 1.etasje
    Velkommen inn! Lys og innbydende gang med god garderobeplass for oppbevaring av yttertøy og diverse
    1. etg - Fra gang har du direkte adkomst inn til lys og romslig stue gjennom praktisk og flott glassdør
    1. etg - Stuen er utstyrt med vedfyring noe som gir varme og en hyggelig atmosfære på kalde dager
    1. etg - Åpen løsning mellom stue og kjøkken gir en sosial og luftig atmosfære
    1. etg - Klassisk kjøkken med rikelig skapplass, integrerte hvitevarer og godt arbeidsområde
    1. etg - God plass til stort spisebord - ideelt for hyggelige familiemiddager og selskap
    1. etg - Store vinduer som slipper inn rikelig med dagslys og gir en lun og innbydende stemning i rommet
    1. etg - Koselig TV-kork med gode møbleringsmuligheter - her er det mulighet for å gjøre det personlig etter dine ønsker og behov
    1etg - Veranda
    1etg - Veranda
    1. etg - Flislagt bad med dusjhjørne, god skapplass og opplegg for vaskemaskin - praktisk og funksjonelt
    1. etg - Stor servantinnredning med rikelig oppbevaringsplass og stort speil som gir en romslig følelse
    1. etg - Soverom 1 - Romslig hovedsoverom med plass til stor dobbeltseng og godt med naturlig lys fra vinduet
    1. etg - Soverom 1
    Plantegning 2.etasje
    2. etg - Lys stue med gode møbleringsmuligheter og vedfyring som skaper en lun og hyggelig atmosfære på kalde dager
    2. etg - Spisestue med store og hyggelige vinduer som slipper inn rikelig med dagslys og skaper en luftig atmosfære
    2. etg - Åpen løsning mellom kjøkken og spisestue - perfekt for hyggelige måltider og sosialt samvær
    2. etg - Pent kjøkken i lys innredning med god benkeplass og overskap som gir rikelig lagringsmuligheter
    2. etg - Flislagt bad med servant i heltre og speilskap - praktisk og enkelt å holde ryddig
    2. etg - Badet er utstyrt med dusjkabinett, toalett og opplegg for vaskemaskin
    2. etg - Soverom 1 - soverom med god plass til seng og garderobe - lyst og trivelig med utsikt til hagen
    2. etg - Soverom 2 - lyst og innbydende rom som kan brukes som soverom, barnerom eller hjemmekontor, her er det rikelig med garderobeplass
    2. etg - Hyggelig balkong med plass til sittegruppe - perfekt sted å nyte morgenkaffen eller kveldssola
    Plantegning underetasje
    Velkommen til sokkeletasjen!
    Sokkeletasje - Hyggelig stue i kjelleretasjen med åpen løsning mot kjøkken
    Sokkeletasje - Trivelig stue med vedfyring og plass til sofagruppe - her har du mulighet til å sette ditt personlig preg
    Sokkeletasje - Kjøkken med hvite fronter, godt med skapplass og integrerte hvitevarer - funksjonelt og lyst
    Sokkeletasje - Praktisk kjøkken med spiseplass og oppbevaringsmuligheter
    Sokkeletasje - Romslig bad med dusjkabinett, toalett og opplegg for vaskemaskin
    Sokkeletasje - Badet har servant med underskap, speilskap og god lagringsplass
    Sokkeletasje - Soverom i kjelleretasjen med plass til både dobbeltseng og garderobeløsning
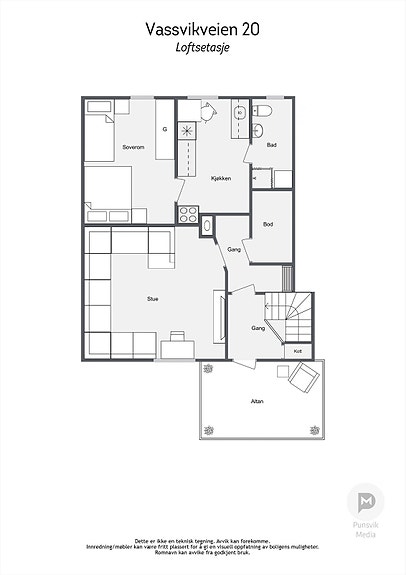
    Vassvikveien 20 - Loftsetasje
    Velkommen til leilighet i loftsetasjen!
    Loftsetasjen - Stuen har store vinduer som slipper inn rikelig med dagslys
    Loftsetasjen - Bad med servant og skap med speil
    Loftsetasjen - Badet har dusjsone og opplegg til vaskemaskin
    Loftsetasjen - Kjøkken med plass til lite spisebord - her er det mulighet for å sette personlig preg på kjøkkenet
    Loftsetasjen - Kjøkken er utstyrt med med komfyr og ventilator - perfekt for bruk som hybel
    Loftsetasjen - Soverom med skråtak - plass til seng og garderobeløsning
    Loftsetasjen - Soverom
    Loftsetasjen har egen altan med plass til utemøbler
    Utsikt fra altan
    Plantegning garasje
    Garasje med plass til bil eller oppbevaring om ønskelig
    Flott beliggenhet med kort vei ned til sjøen og småbåthavna - perfekt for deg som ønsker å bo i nærheten av sjøen
    Eiendommen ligger i et trivelig og etablert nabolag med gangavstand til sentrum og daglige fasiliteter
    Velkommen på visning til Vassvikveien 20!
    Se alle bilder +Gjem alle bildene -
    Jenssen og Bolle
    Ingve Hilstad
    Eiendomsmegler MNEF / Fagansvarlig
    Kontakt
    +47 91 33 37 68
    Vis alle eiendommer Se hele annonsen på Finn.no